detail
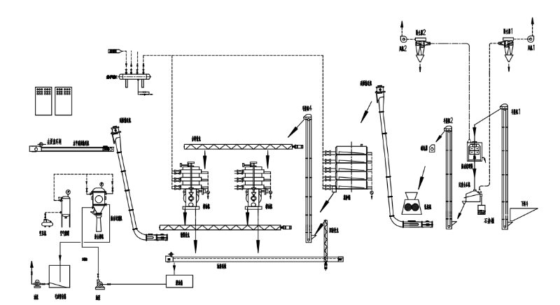
1.Technology I: the cultivation of Sesame embryos
First making Sesame seed into sesame embryos before press , Sesame oil is rich in nutrition is the key raw material before feeding, promoting produce beneficial nutrients,like sesamol and sesamin, sesamolin etc. Scientific research, this technique is highly consistent with the modern life sciences. It is not available to the other process.
2.Technology II: grinding
The process of grinding has low temperature, low pressure, the temperature during processing is 60-65 ℃, so it will not damage the sesame substances and nutrition in sesame oil .

3. Technology III: using water instead of oil extraction
With high quality drinking water can easily separate oil and germ without any chemical solvent, so there is no residual chemical solvents. Meanwhile, poisonous heavy metals from sesame oil can be settle our easily for heavy precipitation, so, making the sesame oil in this way is completely healthy.
4.Technology IV: patented physical purification technology
Using the patented physical filtration, natural plant fiber as a medium, purified Sesame oil will come out after two-stage electronic thermostat natural precipitation, 36 physical filtration, filter out impurities and foreign bodies in the sesame oil. purified Sesame oil has crystal clear, good color, aroma and taste,
5. Specifications:
Moisture of extraction material
5-8%
temperature of extraction material
50-55°C
oil content of extraction material
50-55°C
oil content of extraction material
14-18%
thickness of extraction cake
less than13mm
powder porosity of extraction material
less than 15% (30 mesh)
steam
more than 0.6Mpa
solvent
national standard No. 6 solvent oil
electric power
50HZ 3*380V±10%
Electric lighting
50HZ 220V ±10%
Temperate of supplement water
less than 25°C
Hardness
less than 10
volume of supplement water
1-2m/t raw material
temperature of recycle water
less than 32°C